中古一戸建て
西宮市甲陽園目神山町
この物件のお支払い例 頭金/ボーナス払い0円 頭金0円
- 物件価格
- 3,900万円
- 月々の支払い
(初回お支払額)
-
{{ monthlyPayment?.toLocaleString() }}円
※上記支払例の借入条件:金利{{ loanInterestRate }}%、借入総額3,900万円(うちボーナス払い{{ loanBonusMan }}{{ loanBonusUnit }}円)、借入期間{{ loanTerm }}年、{{ loanPaymentMethodName }}返済方式、ボーナス支払額(初回){{ bonusPayment?.toLocaleString() }}円
支払いシミュレーション
- 万円
- 万円
- %
- 万円
| ボーナス払い | {{ loanTerm }}年 |
|---|---|
| 0万円 | |
| 5万円 | |
| 10万円 | |
| 15万円 | |
| 20万円 | |
| 25万円 | |
| 30万円 | |
| 35万円 | |
| 40万円 | |
| 45万円 | |
| 50万円 |
× 閉じる
所在地・交通
| 所在地 | 兵庫県西宮市甲陽園目神山町 | ||
|---|---|---|---|
| 交通 |
阪急電鉄甲陽線 甲陽園駅 徒歩15分 (1123m) |
その他交通 | |
| 小学校校区 |
西宮市立甲陽園小学校 |
中学校校区 |
西宮市立大社中学校 |
※学校区は住所から自動判定したものであり、保証できる情報ではございません。正確な学校区はお問い合わせ下さい。
「人型アイコン」を地図上にドラッグすることで『Google ストリートビュー』に切り替わります。
※地図上の「対象地」は「兵庫県西宮市甲陽園目神山町 」付近を示しています。実際の場所ではない場合がございます。詳しくはお問い合わせください。
物件概要
| 価格 |
3,900万円
|
種目 | 中古一戸建て |
|---|---|---|---|
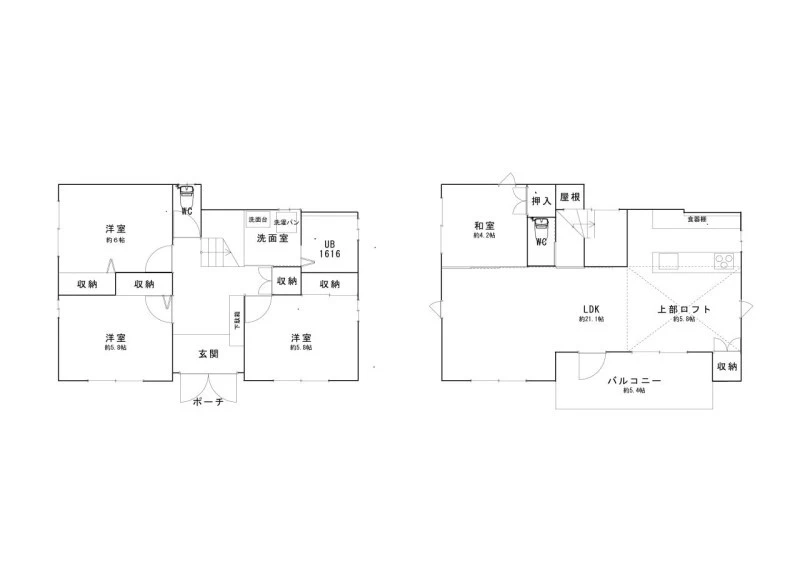
| 間取り | 4LDK | 間取り向き | |
| 土地面積 | 175.64㎡(公簿) | 私道面積 | 私道負担面積有 6.46㎡ |
| 建物面積 | 103㎡ | 建物構造規模 |
木造 2階建 |
| バルコニー面積 | バルコニー向き | ||
| 築年月(竣工月) | 2016年 12月 | 駐車場 | 有 |
| 総戸数・総区画数 | 販売戸数・販売区画数 | ||
| 接道状況 |
一方 南西 間口9.3m 私道 幅4.7m 位置指定有 |
||
| 地目 | 宅地 | ||
| 建ぺい率/容積率 | 30% / 80% | 都市計画 | 市街化区域 |
| 土地権利 | 所有権 | 地勢 | 高台 |
| 用途地域 | 第一種低層住居専用 | 国土法 | |
| 現況 | 空家 | 取引態様 | 媒介 |
| 建築確認番号 | |||
取引条件等
| 引渡し | 相談 |
|---|
その他
| 設備 | 都市ガス、電気、上水道、下水道、側溝、システムキッチン、食器洗浄乾燥機、トイレ2箇所、バス・トイレ別、温水洗浄便座、洗面所、洗面台、室内洗濯機置場 | ||
|---|---|---|---|
| 特徴 | |||
| 諸条件・相談 | |||
| 情報登録日 | 2026年1月24日 | 情報更新予定日 | 2026年5月7日 |
| 物件番号 | 849465 | ||