中古一戸建て
リノベ済み
神戸市垂水区星陵台1丁目
この物件のお支払い例 頭金/ボーナス払い0円 頭金0円
- 物件価格
- 1,980万円
- 月々の支払い
(初回お支払額)
-
{{ monthlyPayment?.toLocaleString() }}円
※上記支払例の借入条件:金利{{ loanInterestRate }}%、借入総額1,980万円(うちボーナス払い{{ loanBonusMan }}{{ loanBonusUnit }}円)、借入期間{{ loanTerm }}年、{{ loanPaymentMethodName }}返済方式、ボーナス支払額(初回){{ bonusPayment?.toLocaleString() }}円
支払いシミュレーション
- 万円
- 万円
- %
- 万円
| ボーナス払い | {{ loanTerm }}年 |
|---|---|
| 0万円 | |
| 5万円 | |
| 10万円 | |
| 15万円 | |
| 20万円 | |
| 25万円 | |
| 30万円 | |
| 35万円 | |
| 40万円 | |
| 45万円 | |
| 50万円 |
× 閉じる
所在地・交通
| 所在地 | 兵庫県神戸市垂水区星陵台1丁目 | ||
|---|---|---|---|
| 交通 |
JR山陽本線 舞子駅 8分 徒歩1分 (80m) JR山陽本線 垂水駅 10分 徒歩5分 (400m) 山陽電鉄本線 霞ヶ丘駅 徒歩15分 (1200m) |
その他交通 | |
| 小学校校区 |
神戸市立東舞子小学校 |
中学校校区 |
神戸市立星陵台中学校 |
※学校区は住所から自動判定したものであり、保証できる情報ではございません。正確な学校区はお問い合わせ下さい。
「人型アイコン」を地図上にドラッグすることで『Google ストリートビュー』に切り替わります。
※地図上の「対象地」は「兵庫県神戸市垂水区星陵台1丁目 」付近を示しています。実際の場所ではない場合がございます。詳しくはお問い合わせください。
物件概要
| 価格 |
1,980万円
|
種目 | 中古テラスハウス |
|---|---|---|---|
| リノベーション | リノベーション済 | ||
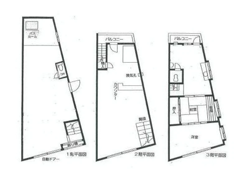
| 間取り | 2LDK | 間取り向き | |
| 土地面積 | 71.4㎡(公簿) | 私道面積 | |
| 建物面積 | 123.89㎡ | 建物構造規模 |
鉄筋コンクリート(RC) 3階建 |
| バルコニー面積 | バルコニー向き | ||
| 築年月(竣工月) | 1979年 11月 | 駐車場 | |
| 総戸数・総区画数 | 販売戸数・販売区画数 | ||
| 接道状況 |
一方 南 間口6m 公道 幅15m |
||
| 地目 | 宅地 | ||
| 建ぺい率/容積率 | 80% / 300% | 都市計画 | 市街化区域 |
| 土地権利 | 所有権 | 地勢 | |
| 用途地域 | 近隣商業 | 国土法 | |
| 現況 | 空家 | 取引態様 | 媒介 |
| 建築確認番号 | |||
取引条件等
| 引渡し | 相談 |
|---|
その他
| 設備 | 都市ガス、電気、上水道、下水道、システムキッチン、トイレ2箇所、エアコン、出窓、ウォークインクローゼット | ||
|---|---|---|---|
| 特徴 | 内装リフォーム | ||
| 諸条件・相談 | |||
| 情報登録日 | 2024年8月21日 | 情報更新予定日 | 2026年4月7日 |
| 物件番号 | 229137 | ||